
HD رافعة كهربائية ذات العارضة الواحدة ذات العارضة الواحدة HD
الرافعة الجسرية ذات العارضة الواحدة أوروبية هي عبارة عن آلات رفع مدمجة مصممة وتصنع وفقا لمعيار FEM و DIN ، والتي تتميز بالتكنولوجيا المتقدمة والتصميم الجميل. تنقسم إلى النوع العام ونوع التعليق ، وتدعم استخدام رافعة كهربائية قياسية أوروبية ، ومناسبة لمعالجة مواد الورش والمخازن ، وتجميع أجزاء كبيرة الدقة وأماكن أخرى.
HD رافعة كهربائية ذات العارضة الواحدة ذات العارضة الواحدة HD
وصف مختصر:
الرافعة الجسرية ذات العارضة الواحدة أوروبية هي عبارة عن آلات رفع مدمجة مصممة وتصنع وفقا لمعيار FEM و DIN ، والتي تتميز بالتكنولوجيا المتقدمة والتصميم الجميل. تنقسم إلى النوع العام ونوع التعليق ، وتدعم استخدام رافعة كهربائية قياسية أوروبية ، ومناسبة لمعالجة مواد الورش والمخازن ، وتجميع أجزاء كبيرة الدقة وأماكن أخرى.

يمكن أن تستخدم على نطاق واسع في تصنيع الآلات ، المعادن ، البترول ، التحريك ، الميناء ، السكك الحديدية ، الطيران المدني ، الغذاء ، صناعة الورق ، البناء ، ورشة صناعة الإلكترونيات ، المستودعات وغيرها من حالات التعامل مع المواد ، esp. تطبق على التعامل مع المواد التي تحتاج إلى تحديد المواقع بدقة ، ومكونات كبيرة وضع التجمع الدقيق.

صور مفصلة:

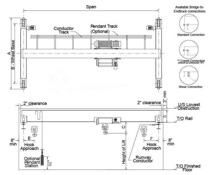
رسم سكتش:

المعايير الفنية:
امتداد | م | 7.5 | 10.5 | 13.5 | 16.5 | 19.5 | 22.5 | 25.5 |
سعة | تي | 1 ~ 12.5t | ||||||
الوزن الكلي | كلغ | 1781 ~ 12086 | ||||||
وزن العربة | كلغ | 405 ~ 740 | ||||||
ماكس. تحميل عجلة | KN | 13.5 ~ 90.94 | ||||||
السكك الحديدية السفر | P24 P43 ~ | |||||||
سرعة الرفع | م / دقيقة | 0.8 / 5 | 0.8 / 5 | 0.8 / 5 | 0.8 / 5 | 0.8 / 5 | 0.8 / 5 | 0.8 / 5 |
ارتفاع الرفع | م | ≥ 6 | ≥ 6 | ≥ 6 | ≥ 6 | ≥ 6 | ≥ 6 | ≥ 6 |
مجموع قوة المحرك | كيلووات | 4.31 | 4.31 | 4.31 | 4.31 | 4.67 | 4.67 | 4.67 |
سرعة الرافعة | م / دقيقة | 3-30 | 3-30 | 3-30 | 3-30 | 3-30 | 3-30 | 3-30 |
سرعة العربة | م / دقيقة | 2-20 | 2-20 | 2-20 | 2-20 | 2-20 | 2-20 | 2-20 |
واجب العمل | M5 / A5 | |||||||


English
Srbija jezik (latinica)
slovenščina
magyar
עברית
suomi
Latviešu
فارسی
Čeština
українська
Português
Català





